行业动态

医学检验的布局与设计

2019-09-07     来源:医院检验医学科设计与建设 | 建    点击:1970次
《医学检验的布局与设计》
摘自演讲嘉宾:胡铁石 [原辽宁省人民医院副院长]
 
主要内容
 流程 
•平面布局
•建筑结构
 功能 
•强电设计
•弱电设计
 功能 
•给排水设计 
•通排风设计
 装饰 
•装饰设计 
•实验台选择
 
主要内容
• 一级流程选址(一体化、门诊-中心分设) 
• 二级流程内部流线(生物安全、方便患者) 
• 三级流程决定功能(基础设施决定使用功能)
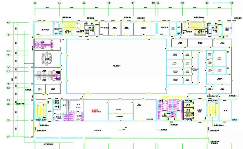
医学检验科目前设计与建设已经出现过度问题,导致这些问题出现主要是实验室集成商过度设计;地区主管部门对感控检查比照标准过高。科室主任过度追求形象等。检验科宜设在门诊楼,并应自成一区,三甲医院检验科面积宜不少于1200㎡,二甲医院检验科面积宜不少于800㎡,如果检验科还承担有较多的科研、教学任务,面积还应适当增加,保证今后功能的扩充。
理想化的流程布局
 

建立合理的压力梯度,从低风险区域向高风险区域路由
 
 

这是比较理想的设计,3000平方米的医学检验科。上海某家新建医院,图纸设计完成时间是2018年年初。微生物检验标本独立收取,减少在实验室内的分配。
 
建筑结构
•1、结构降板区域:该区域应满足自动化流水线安装界面,过度预留导致后期回填增大。 
•2、荷载要充分预留 
•3、纯水机房设计(纯水制作技术选择) 
•4、UPS机房荷载(制造商选择与安装要求)
 
 
在线式单离心机模块:740kg;单组生化分析仪、化学发光、(包含core,msb)1700kg;对于活荷载考虑优于静荷载。
 
结   构
•5、强电、弱电管井与机房的散热问题(是否有运营商的设备在弱电机房内) 
•6、降板区域的后期解决方案(采用回填+管沟或架空) 
•7、墙体砌筑与内装设计方案融合。(非防火要求的区域墙体砌筑或隔断提前进行施工界面划分)
•8、净化区域准确定位。 
 
 
给排水
•1、纯水管线的铺设与水点定位(墙图、实验台摆放很重要) 
•2、生化免疫流水线排水管线铺设(墙图与设备安装图纸) 
•3、生物安全应急喷淋位点,洗眼器位置 
•4、水点的预留(未来房间功能改变)
 
空调与通排风
•1、主系统在检验科的布局 
•2、VRV多联机控制范围 
•3、净化区域空调设置(控制系统选择:品牌、模式) 
•4、实验区下排风口位置。(避免被试验台遮挡) 
•5、非独立排风需增加止回阀。 
•6、如何除湿:海滨城市、南方水系发达地区室内除湿应提前制定方案。
北方或气候干燥地区应考虑必要的加湿
 
 
检验科主实验室设备产热量大,单纯以建筑规范的负荷标准设计,导致冷量不足 ,南方地区建议风机盘管加大30-50%。
 
•7、如何利用气候特征以增加通风降温。(节能) 
•8、高压灭菌室废气排放;(建议采用机械排放) 
•9、试剂冷藏室室外机位置;对外立面装饰影响的解决方案。 
•10、 UPS机房散热解决方案 
 
实验室室内排风
• 新风口距地面高度不应低于2.5m 
• 实验室的排风机应与送风机连锁设计,排风机应先于送风机开启,后于送风机关闭,室内排风管道与生物安全柜等设备的排风管道应分开设置; 
• 室内送风口和排风口布置应使室内气流停滞的空间最小,净化室内送排风应采用上送风下排风的方式; 
 
•实验室的各区域之间应保持不小于5Pa 的气压差,保证气流是从清洁区流向污染区,避免逆流污染,建议在易于观察的地方设置压差表;
 
 
 
 
 
 
强电设计
· 检验科强电设计的特殊性

 
 
强电设计
•1、大型设备主要是生化分析仪与化学发光仪,要了解设备的接电方式,个别制造商是空开接线。 
•2、接地非常重要,医疗设备接地是否为独立接地? 
•3、设备安装位置应有必要的模式图,专业设计一定结合设备清单进行。如不能确定,需每间隔1.5米设立三电一网; 
 
1、设备使用功率与线径相关;
2、等电位接地,不可使用防雷接地;
 
•4、要保证充分的配电预留,避免以后另行铺设主电缆
检验科电力总量应计算合理,不能以开诊时的设备功率计算,应按未来实验室规划计算。
•5、插座高度为100—110cm。 #p#分页标题#e#
 
大型医院检验科多条流水线,建议多组UPS,强电在检验科最好适当预留冗余。一般三甲医院20-30%,县级医院50%。
 
弱  电
•检验科设备比较密集,如弱电机房距离检验科较远,建议光纤进入检验科,在科室内设置交换机,进行综合布线。 
•对于科室面积较大实验室,建议科室门禁系统由检验科内部授权管理。 
•网络接口布点高度为100—110cm(电源插座同) 
•主设备区域如非24小时有人值守,建议安装监控至医院监控室并设为重点监控部位。
 
净  化
•1、检验科生物安全管理为P2级。除PCR、微生物检验、HIV实验室有特殊要求,其它区域采用合理通风即可。 
•2、净化区域满足10万级即可,利用生物安全柜实现局部百级。 
•3、净化墙板应满足防火要求(机制板或手工板) 
 
•净化区域、缓冲区域门洞尺寸,要满足设备的运输。 
•净化区域空调机组安装位置应提前做好必要的预留。

 
装饰要求
•1、洁净区域 
•2、如何降低噪声:棚面宜采用冲孔铝板,厚度根据板面大小确定(因检验科对冷负荷要求较大,矿棉板易受潮变形) 
•3、墙体材料(规范要求光滑。但考虑吸噪,建议采用吸音板,外涂光触酶杀菌涂料) 
•4、地材:水机房、高压灭菌室、UPS机房地砖。实验区、生活区为同质透心地胶,或架空防静电地板 
•5、消防喷淋避让:大型流水线上方不易设置 
•6、科室内部非库房、隐私区域,宜采用可视隔断。
 
实验台的选择
•1、承载式 
•2.台面:采用实验室专用10-13mm厚实芯理化板,耐刻划性能达到4N;最好在台面前沿下边开止水槽,有效防止台面上积水沿台面边沿流入柜体。 
•3.柜体:采用1.0mm厚冷轧钢板为基材,表面经磷化、酸洗、热固、最好环氧树脂粉末喷涂处理(涂层厚度为≥70微米。柜体底板内加加强筋,以加强其承重能力,防止层板受力变形。 
•活动背板:可拆卸活动背板,钢板采用1.0mm厚冷轧钢板, 表面环氧树脂喷涂。层板:采用1.0mm厚冷轧钢板,表面环氧树脂粉末喷涂。层板可调节。 
•4.抽屉:采用1.0mm厚冷轧钢板,表面采用环氧树脂粉末喷涂;抽屉内外部钢板表面经环氧树脂粉末喷涂。 
•5.拉手:采用一体冲压成型槽拉手(立面无障碍)
•6.合页:采用304不锈钢立轴合页,折页旋转角度>270° 
•7.门板:采用1.0mm厚冷轧钢板,表面采用环氧树脂喷涂。门板为双层钢板,折弯制作,夹层内填有消音材质。门板内外部的钢板表面经环氧树脂喷涂。 
 



 
在线咨询
QQ在线咨询
服务热线
0771-4894580
18677181276
关注微信公众号